『Hygge style』ー居心地の良さを大切にした住まい。 | 東京都内近郊のリノベーションを行う空間社の事例

03-5707-2330

『Hygge style』ー居心地の良さを大切にした住まい。

お子様の誕生予定をきっかけに「中古マンション購入×リノベーション」で新しい住まいを計画されたS様。都心エリアでありながら、静謐感のある周辺環境が気に入り、現在のお住まいに購入を決められたそう。ご夫婦が望んだのは、明るく開放感があり、子どもと愛犬に安全で優しい設計。家族が笑顔で団欒できる、ほっこりしたくつろぎ感のある家。ご夫婦共にクリエイティブのお仕事をされていることから、それぞれのワークスペースもしっかり確保しつつ「帰ってくることが楽しみになる」そんな家をイメージしてリノベーション計画をスタートさせました。

家族みんながリラックスできるLDKと、それぞれのワークスペース
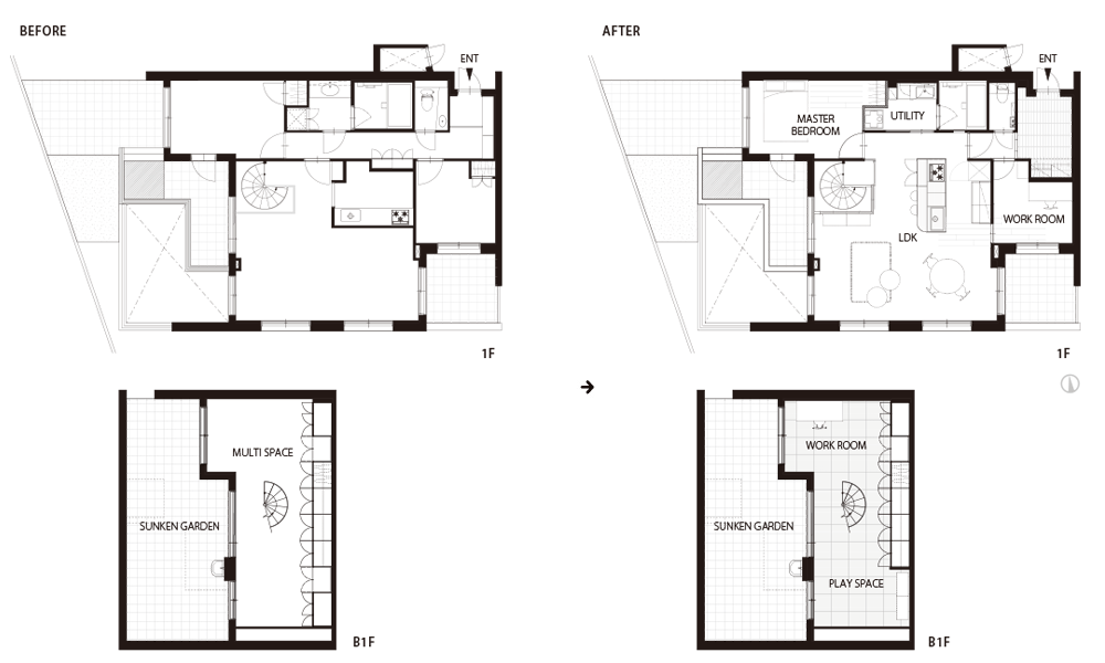
以前は独立型だったキッチンをオープンにし、廊下の壁を取り払い、広々と開放感のあるLDKへ間取り変更しました。カウンターをR曲面にした柔らかいデザインのオープンキッチンを主役に造作。バックセットと共通の扉面材はディティールにこだわり、温かみのある配色でタイルを選定。キッチンカウンターには家族みんなが集まれるようハイチェアを置けるスペースを設けました。ダイニングのペンダントライトは、奥様が学生時代から憧れていた念願のアアルトの照明を取り付けて。「キッチンを家族で囲んだり、友人を招いて楽しい時間を過ごしたり、家でゆったりすることが最高の時間になっています」と話します。

螺旋階段には、お子様の安全に配慮して壁と扉を新設。光が通るようにガラス戸で仕切りました。階段を降りると、地下一階にはご主人様のワークスペースがあります。床材の更新とアクセントタイルを張り、ライブラリーのような雰囲気を持つ空間に。LDKに面したお部屋は奥様のワークスペース。かつてはお母様が使用されていたデスクを受け継ぎ、デザイナーのお仕事をされています。北欧で育った奥様の「ヒュッゲな暮らしの価値観」から生まれた居心地の良い空間には、そこにいるだけで幸せな気持ちになる不思議な力があります。

床に近い生活スタイルでくつろぐ
LDKの床材は、お子様と愛犬の足に優しい自然素材のコルクフロアーを採用。ほどよくクッション性があり、走り回っても安心で清掃性にも優れています。「床は汚れもサッと拭きやすく快適で、デザインもとても気に入ってます」とご主人様。安全に遊びやすく配慮されたロースタイルリビングには、TVは置かず頭上にプロジェクターのスクリーンを設置。ビーズクッションにごろんと体をあずけ、のんびりと大画面で映像を楽しむスタイルに。螺旋階段を囲んだ新設壁の脇にも、お母様から受け継いだ小物収納の引き出しが置かれています。引き出しの見出しラベルは30年前のものをそのままに。モノは少なく家具も低めに置くことで、ゆったりとしたくつろぎの時間が流れます。

“好き”を飾ると、暮らしが微笑む
玄関は既存のシューズクローゼットを取り外し、面積を横に広くしました。土間のたたきはレンガタイルを採用し、ご夫婦の希望で壁面を黒板仕上げに。訪れた友人やゲストにチョークでイラストやメッセージを描いてもらったり、記念撮影したPolaroid写真を飾って楽しまれています。シューズクローゼットはオープンの可動棚を設置して、ロールスクリーンで目隠しもできる設計に。ちょっと置いておきたいチャイルドシートや上着を掛けておけるマルチユースな収納スペースです。

大きな花柄のトイレの壁紙は、愛犬の足形と家族の手形をコラージュしたオリジナルクロス。北欧らしい温かみのある鮮やかな色彩が目を引きます。洗面室は、洗濯物を畳むスペースを取りたいご要望から、浴室を小さくして広げました。壁面タイルの目地もワインカラーがアクセントになった可愛らしい空間に。

優しい陽だまりと自然素材で包み込まれた空間は、日常生活に快適さをもたらします。時と国を超えて受け継がれた家具と余白の美しさが共存する、素敵なお住まいが完成しました。

RENOVATION PLAN

DATA

施工主

渋谷区S邸

物件種別

中古マンション

築年数

24年

施工面積

109.92㎡

施工期間

3ヶ月

家族構成

夫婦+子供1人+愛犬1匹

工事箇所

全面

工事費

1629万円

備考欄

設計料別

物件番号

142

MATERIALS

おすすめの事例